4. Preis Wettbewerb Kindergarten und Hort Küttingen
Gesamtleistungswettbewerb für einen 5-fach Kindergarten mit Tagesstrukturen
5- fach Kindergarten mit Hort in Holzbauweise aus dem gemeindeeigenem Jurawald
Offener Gesamtleistungs- Wettbewerb, 4. Preis 2022
Geschossfläche 1’480 m2
Gebäudevolumen 5’630 m3
Gebäudekosten ca. 6 Mio CHF
Planerteam:
Gesamtleister/ TU Holzbau: Häring AG, Eiken
Architektur: Reichel Architekten, Zürich
Landschaftsarchitektur: Rosenmayr Landschaftsarchitekten, Zürich
Bauingenieur: Fanzun AG, Chur
Elektroplanung: Scherler AG, Luzern
Haustechnikplanung: Basler & Hofmann AG, Zürich
// 5-class Kindergarten with daycare-group in locally-sourced timber construction from the municipality’s own forest
open competition, 4th. prize 2022
floor area 1’480m2
building volume 5’630 m3
building costs ca. 6 Mio. CHF
Die Schulanlage Stock wird in den kommenden zwei Jahrzenten grundlegenden Veränderungen unterworfen sein. Die allermeisten der Bestandsgebäude östlich der Neuen Stockstrasse werden rückgebaut und nach und nach ersetzt werden.
Durch diese anstehenden Veränderungen ist eine klassische städtebauliche Herangehensweise, die sich an den Umgebungsgebäuden orientiert und deren Struktur weiterführt, schwierig.
Der Kindergarten- und Hortneubau orientiert sich daher nicht primär an den südlichen Bestandsgebäuden und nimmt deren Orthogonalität auf, sondern fügt sich schlank entlang der westlichen Parzellengrenze mit seinem Kopf im Norden am Stockweg an.
Dies schafft östlich genug Platz, um eine in Nord-Süd-Richtung verlaufende Wegverbindung zwischen Schulanlage und Stockweg, die Aussenräume der Kindergärten, Aussenräume für die gesamte Schulanlage, sowie den Rasenplatz zu schaffen.
Der bestehenden, neu zu konzipierenden Schulanlage wird so genügend Platz gelassen, um sich ohne zu viele Einschränkungen durch den Kindergarten-Neubau entwickeln zu können.
Der Kindergarten-Neubau schafft damit im Süden den neuen Pausenhof für die Primarschule, sowie eine rechtwinkelige Anbindung an die neue «rue interieure» der Schulanlage und im Norden einen Ankommensort mit Adressbildung am Stockweg zusammen mit dem imposanten Tulpenbaum und befestigten Plätzen.
Der Neubau ist so kompakt organisiert, wie möglich, um den knappen Freiraum möglichst zu schonen und die Volumen- und Kosteneffizienz hoch zu halten.
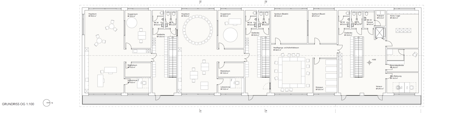
Die Kindergarten- und Horträume sind zweigeschossig übereinander angeordnet, wobei sich die zwei jeweils übereinanderliegenden Klassen einen Windfang mit Eingangsbereich, bzw. Treppe in das Obergeschoss teilen.
Durch den Verzicht auf einen gemeinsamen, warmen Erschliessungsgang können die Unterrichtsräume beidseitig belichtet werden. Die Erschliessung der Klassenräume erfolgt jeweils über die Garderoben (Finkenbetrieb). Für den betrieblichen Unterhalt, wie Putzen, etc. gibt es Türen zwischen den Klassenräumen und den Garderoben der Nachbarklasse. So kann das Facility Management stufenlos und beheizt alle Räume erreichen.
Diese Türen können auch von den Lehrpersonen genutzt werden, falls sie etwas mit der Lehrperson der Nachbarklasse besprechen müssen.
Im Norden am Stockweg sind die administrativen und Spezial- Unterrichtsräume angeordnet und bilden zusammen mit dem Haupteingang hier einen Kopf mit Adressbildung aus.
Über eine Treppe gelangt man in das Obergeschoss, wo sich der Hort mit Küche und Büro befindet. Der durchlaufende Balkon ist als informelle Verbindung zwischen den beiden Kindergartenklassen im Süden und dem Hort im Norden gedacht. Zudem schützt er den Erschliessungsweg im Erdgeschoss und schafft hier den geforderten gedeckten Aussenbereich.
Visualisierung: Filippo Bolognese Images, Milano (IT)





