Schulhaus Seegarten Arbon
Wettbewerb für einen Schulhausbau am Bodensee
In Zusammenarbeit mit Michael Rubin, Architekt ETH
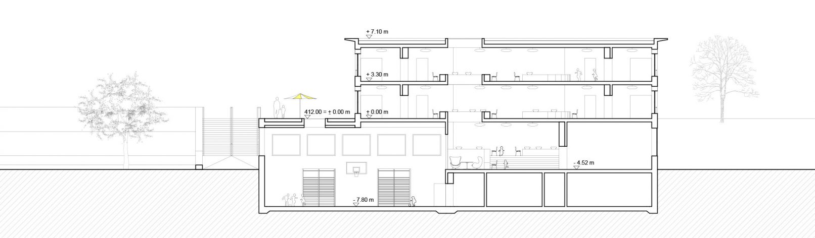
Der Neubau der Schulanlage Seefeld gliedert sich durch die Setzung des länglichen kompakten Volumens in die bestehende Bebauungsform ein. Einerseits übernimmt er die Grossmassstäblichkeit der angrenzenden Industriebauten, andererseits vermittelt er durch die Einschnitte im Volumen und durch die aus der Topographie abgeleitete Terrassierung hin zu den Wohnbauten. Die Kopfsituation zur Romanshornerstrasse (mit Vorfahrt für den Schulbus) ist als städtischer Raum zu erfahren, während die Zugänge von der Seestrasse oder dem Rehweg her als natürliche, grüne Aussenräume in Erscheinung treten. Das Gebäude vermittelt im Spannungsbogen der hybriden Umgebung durch seine Setzung und akzentuiert die vorgefundenen spezifischen Qualitäten des Ortes.
Das Gebäude wird durch ein umlaufendes, flexibles Raster gegliedert. Feine horizontale Bänder fassen das Volumen, welches durch sekundäre vertikale Elemente und Rahmen feiner unterteilt und gegliedert wird. Das gesamte Gebäude wird durch eine primär monolithische Materialisierung als eine Einheit les- und erfahrbar.
Zwei Hauptzugänge (ausgezeichnet durch ein Vordach und ein volumetrischer Einschnitt) markieren die Zugänge. Das Schulhaus kann beidseitig von der Romanshornerstrasse oder der Seestrasse erreicht werden. Die Klassenzimmer im Erdgeschoss und im Obergeschoss sind alle mit einer Ost- Westausrichtung optimal belichtet und untereinander gleichwertig. Direkt verbunden mit dem Gruppenraum erlauben sie den Lehrkräften eine flexible Arbeitsweise für den individualisierten Unterricht. Das Herz der Schulanlage bildet die innenliegende Lernlandschaft, welche vollumfänglich für den Unterricht genutzt werden kann, da keine brandschutztechnischen Einschränkungen (Feuerlast der Möblierung usw.) berücksichtig werden müssen (siehe Brandschutzkonzept). Durch die beiden Lichthöfe ergeben sich neben der direkten Belichtung räumliche Sichtbeziehungen, die das Gebäude als schulischen Erlebnisraum erfahrbar machen. Die vielfältige Nutzungsmöglichkeit der Lernlandschaft (Nischen für den Rückzug, Arbeitsplätze, Spielflächen usw.) in Kombination mit dem wohnlichen Aspekt der Gestaltung der Innenräume (Vorhänge, Nischen, Sitzwürfel) erlauben es den Kindern und den Lehrkräften einen offenen, einladenden und maximal flexiblen Schulalltag zu erleben. Die Lernlandschaft ist so offen und flexibel konzipiert, dass sie auf die zukünftige Entwicklung der Schulformen reagieren kann.
Projekt // project
- Wettbewerb
- Schulbau
- Öffentliche Bauten





