MFH Hallwilerweg Luzern
Gesamtsanierungen von zwei Mehrfamilienhäusern in der Luzerner Innenstadt
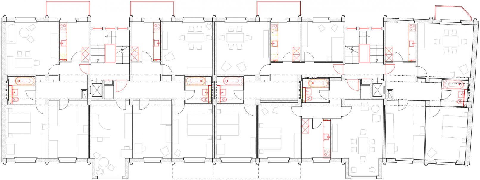
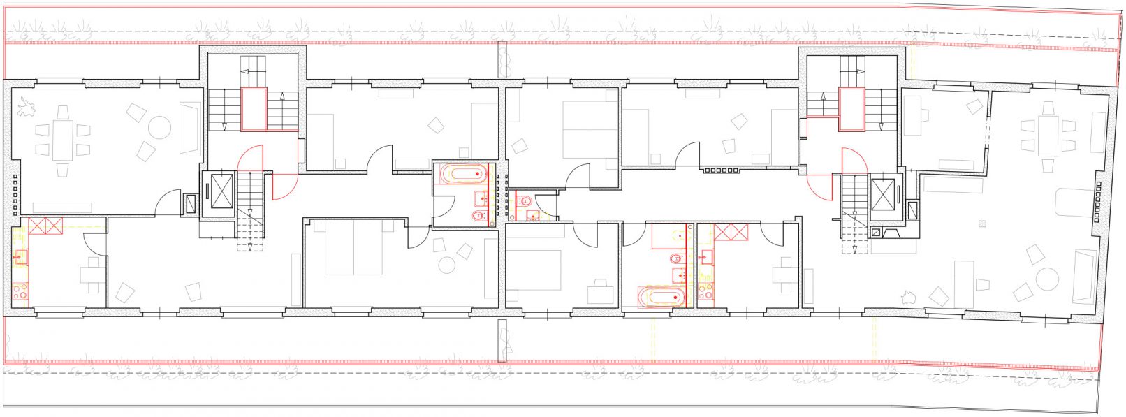
Fertiggestellt! Sanierung zweier Mehrfamilienhäuser mit 31 Wohnungen und Gewerbe aus dem Jahr 1951 in der Luzerner Innenstadt.
Realisierung: 2021/22
Gebäudekosten: vertraulich
Bauherrschaft: private Anlagestiftung
Leistungen: Planerleistungen als Architekt in allen Phasen
Realization: 2021/22
Building costs: confidential
Client: private Investmentfunds
Our services: Planing as architect during all phases
Wir waren als Architekten beauftragt die Sanierung von zwei Mehrfamilienhäusern in der Luzerner Innenstadt zu betreuen. Die Gebäude mit insgesamt 31 Wohnungen wurden 1951 von Architekt Wolfgang Nägeli aus Zürich erstellt. Dieser erlangte neben seiner regen Bautätigkeit vor allem Bekanntheit durch seine bauökonomischen Studien. So gilt er als Begründer der Immobilienökonomie in der Schweiz und als Erfinder der immer noch genutzten Lageklassenmethode, um das Verhältnis von Landkosten zu Anlagekosten zu bestimmen.
Die Sanierung erfolgte in enger Abstimmung mit der Denkmalpflege der Stadt Luzern.
//Completed! Renovation of two multi-appartment-houses with 31 apartments and commercial units, built in 1951 in Luzern’s inner city. Realization 2021/22.
// We were commissioned as architects to accompany the refurbishment of two multi-apartment buildings in Luzern’s inner city.
The two buildings with a total of 31 apartments were designed in 1951 by the Zurich-based architect Wolfgang Nägeli, who besides leading a successful architectural practice, became famous for his works in the field of real estate economics.
He is known as the godfather of Swiss real estate economics and for developing the «Lageklassenmethode» to estimate the relation of land costs to total property value.
The refurbishment was carried out in close coordination with the City of Lucerne’s monument preservation department.
Alle Fotos 2022, Severin Ettlin, Luzern
Projekt // project
- Gesamtsanierung
- Denkmalschutz
- Mehrfamilienhaus
- Wohnungsbau














