1. Preis Wettbewerb WSL Birmensdorf
Büro-, Labor- und Werkstattgebäude in Holzbauweise und Minergie-P Eco
Büro-, Labor-, Lehr- und Werkstattgebäude in Holzbauweise
Generalplaner- Wettbewerb, 1. Preis 2022, Realisierung 2022/23
Energie- Standard: Minergie-P Eco
Geschossfläche 1’800 m2
Gebäudevolumen 5’700 m3
Gebäudekosten ca. 9 Mio CHF
Planerteam:
Generalplaner, Architekten & Kostenplaner: Reichel Architekten, Zürich
Landschaftsarchitektur: Rosenmayr Landschaftsarchitekten, Zürich
Bauingenieur: HallerIngenieure, Baar
Haustechnik- und Elektroplanung: 3-Plan Haustechnik, Winterthur
//Office-, Laboratory-, Education- and Workshopbuilding in timber construction, general planner- competition 1st. prize 2022, realization 2022/23
energy standard: Minergie-P Eco
floor area 1’800m2
building volume 5’700 m3
building costs ca. 9 Mio. CHF
Der Ersatzneubau wird als Fortsetzung des bestehenden Campus Birmensdorf gedacht, die bestehenden Wegeverbindungen und Setzungen der einzelnen Gebäude auf dem Gelände werden mit dem Neubau ergänzt. Der Neubau nimmt die Ausrichtung der orthogonalen Gebäudestellung auf und wird Teil des bestehenden Campus.
Zwischen der neuen Werkstatt, dem Labortrakt und dem Hauptgebäude Pavillon entsteht im Süden an sonniger Lage ein grüner Hof, welcher nur im Bereich der erforderlichen Hoferschliessung versiegelt bleibt.
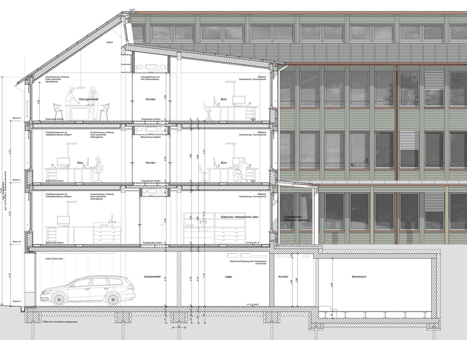
Durch die städtebauliche Setzung ist das Gebäude an seinen Längsfassaden in zwei Geschossen ebenerdig erschlossen: Nordseitig im Niveau A zur Strasse hin und südseitig im Niveau B zum neu gestalteten Hof. Den Vorgaben im Raumprogramm folgend werden im Niveau A die Autowerkstatt, Metall- und Holzbauwerkstatt angeordnet, im Niveau B die Werkstatt und das Labor für Elektronik/ Messtechnik sowie Büros für Forschende. Die Niveaus C und D sind Bürogeschosse, welche die Möglichkeit zu einem flexiblen Innenausbau bieten. Es sind sowohl Einzel- und Kleingruppenbüros, als auch Open Office Zonierungen möglich.
Den sich stetig wandelnden Nutzeransprüchen an Arbeitsplätze, wie z.B. teilweises Homeoffice, oder Shared- Workspaces wird der Bau durch maximal mögliche Flexibilität gerecht. Diese beginnt bei der Wahl eines Fassadenrasters, das sowohl für Einzel-, Gruppen-, als auch Grossraumbüros funktioniert und geht weiter über flexibel ansprechbare und einfach nachrüstbare Bodenkanäle, über nicht tragende Wände und flexibel über Bodendosen erschlossene Stehleuchten über den Arbeitsplätzen.
Visualisierung: Filippo Bolognese Images, Milano (IT)








