Areal Schachenweid Oetwil am See
Siedlung im Zürcher Oberland mit ca. 100 Mietwohnungen
Direktauftrag für die Entwicklung einer Siedlung im Zürcher Oberland mit ca. 100 Mietwohnungen mit Gestaltungsplanpflicht, 2018-2021 (bis Verkauf der Liegenschaft)
Machbarkeitsstufe, Vorprojekt, Gestaltungsplan mit Richtprojekt, Bauprojekt
Bauherrschaft: privat
Wohnungen 104 Stk.
Gewerbeeinheiten 5 Stk.
Grundstücksfläche 16’000 m2
Geschossfläche 23’000 m2
Gebäudevolumen 80’000 m3
Gebäudekosten BKP2 ca. 47 Mio CHF
//Direct mandate for the development of a settlement near Zurich with approx. 100 rental apartments, 2018-2021 (until the sale of the property)
client: private
apartments: 104
office units: 5
plot size: 16’000 m2
floor area 23’000 m2
building volume 80’000 m3
building costs ca. 47 Mio. CHF
Planerteam:
Gesamtleitung, Architektur & Kostenmanagement: Reichel Architekten, Zürich
Raumplaner: Suter von Känel Wild, Zürich
Landschaftsarchitektur: Rosenmayr Landschaftsarchitekten, Zürich
Bauingenieur: Dr. Lüchinger+Meyer Bauingenieure, Zürich
Haustechnik- und Elektroplanung: 3-Plan Haustechnik, Winterthur
Bauphysik: Steigmeier Akustik + Bauphysik, Baden
Brandschutz: 4 Management 2 Security, Zürich
Die 16’000 m2 grosse Baulandparzelle am nördlichen Ortsrand von Oetwil am See ist eine der letzten grossen Freiraumflächen innerhalb der Bauzonen der Ortschaft Oetwil.
Um bei diesen ortsbaulich wichtigen Baustein die Gestaltung mitbestimmen zu können, hat der Gemeinderat in seiner BZO über die Parzelle eine Gestaltungsplanpflicht verhängt. Zusätzlich haben wir mit dem Gestaltungsplan den Gewässerraum des Lieburgerbaches festgelegt.
Innert drei Jahren haben wir zusammen mit Suter von Känel Wild als Raumplaner das Richtprojekt und die Dokumentation des Gestaltungsplans und im Anschluss daran mit unserem Planerteam das Vor- und Bauprojekt bis zum Verkauf der Liegenschaft ausgearbeitet.
Die sieben Volumen sind in der Höhe gestaffelt angeordnet, um die ca. sieben Meter Terrainunterschied von Süd nach Nord sanft aufzunehmen. Ein gemeinsamer, grosszügiger Innenhof schafft Blickbeziehungen zum Strassenraum, sowie zur Landschaftszone im Norden und geht sind in die halbprivaten Nischen zwischen den Volumen über.
Durch Split-Level-Erschliessungen sind die zur Grundstücksgrenze liegenden Gebäudeteile um ein halbes Geschoss tiefer, als die zum Zentrum liegenden.
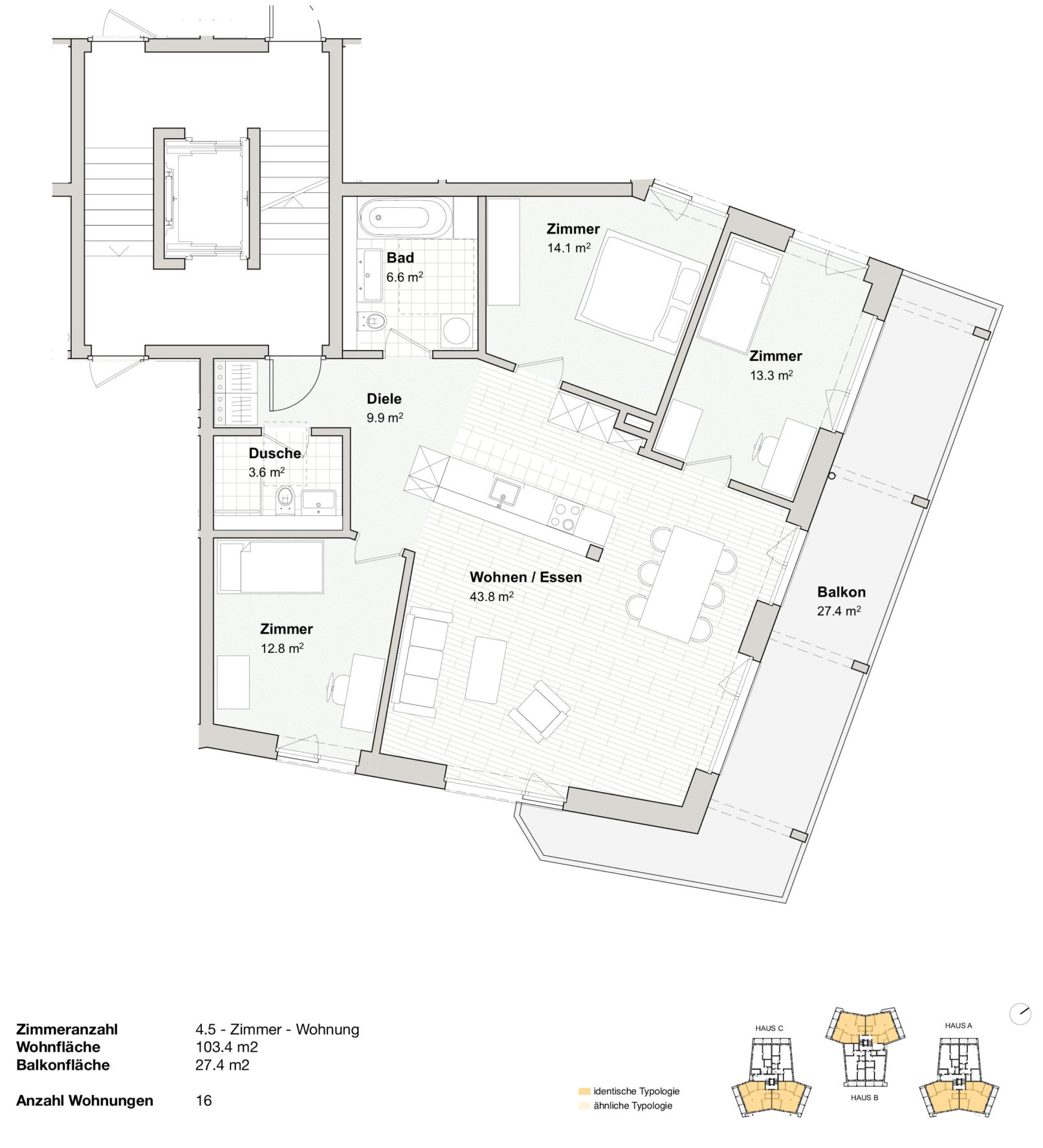
Die Wohnungen entlang der Schachenstrasse sind mehrheitlich als Durchwohn-Typologien konzipiert, um dem Sportbetrieb auf den Fussballplätzen vis-à-vis auszuweichen, wohingegen die Wohnungen in den Flügelbauten dreiseitig orientiert sind.
Die ca. 100 Familien- Mietwohnungen und 5 Gewerbeeinheiten (Co-Working Spaces im EG an der Schachenstrasse) sollen in Einsteinmauerwerk mit Attikaaufbauten aus Holzelementen erstellt werden.
Grosszügige Balkone gliedern die Gebäude horizontal, die Erdgeschosswohnungen haben zum Lieburgerbach hin private Aussenräume.



















