Kindergarten Werd Adliswil
Doppelkindergarten in Holzbauweise & Minergie eco
Doppelkindergarten in Holzbauweise
Wettbewerb, 1.Preis 2018, Realisierung 2020/21
Energie-Standard: Minergie Eco
Geschossfläche 358 m2
Gebäudevolumen 700 m3
Gebäudekosten 2.7 Mio CHF
//2-classroom Kindergarten in timber construction
competition 1st. prize 2018, realization 2020/21
energy standard: Minergie Eco
floor area 358m2
building volume 700 m3
building costs 2.7 Mio. CHF
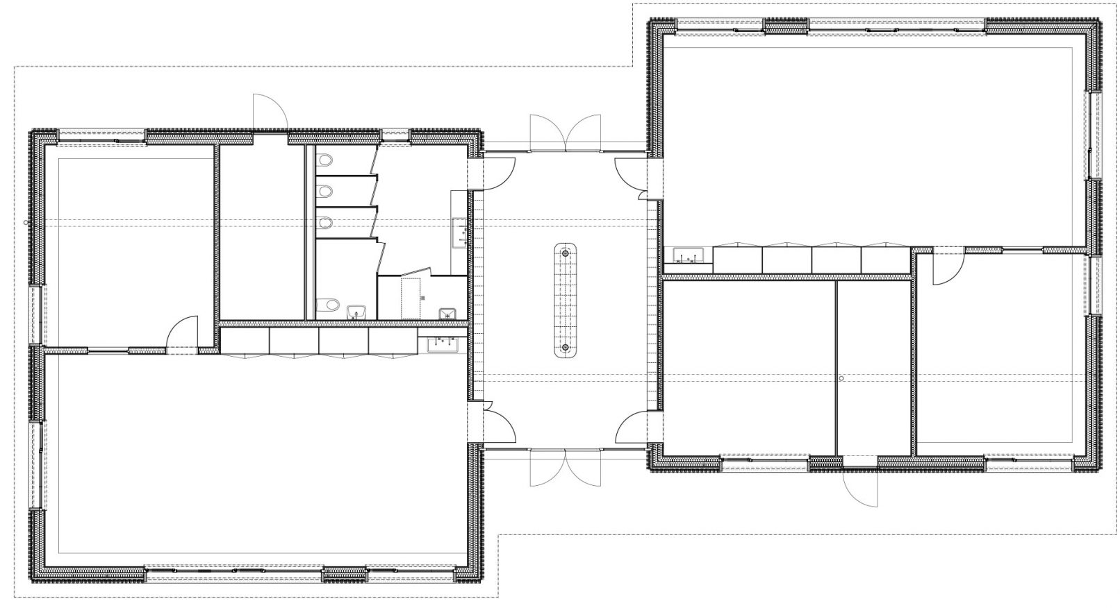
Der Neubau des Doppelkindergartens Werd ist ein Minergie-Eco zertifizierter konstruktiver Holzbau.
Ein kleiner Versatz im Gebäude gliedert das Volumen in zwei Teile und schafft räumlich eine Fassung für die Eingangsbereiche mit Vordach. Mit dieser volumetrischen Gliederung reagiert der Kindergarten auf die bereits bestehende Staffelung der Bestandesbauten auf dem Schulareal Werd. In jedem Teilbereich des Kindergartens ist je ein Klassen- und Gruppenraum mit Nebenräumen vorgesehen. Die Garderobe des Kindergartens wird vom Haupteingang am Schönauweg, als auch vom Ausgang zur Spielwiese/ Hort direkt erschlossen.
Die Fassade des Kindergartens wird vertikal klassisch in drei Bereiche gegliedert: einen Sockelbereich, die Fassade und das Dach.
Der Sockel aus Recyclingbeton schafft den nötigen Höhenunterschied zum Terrain, um den Holzbau vor Nässe zu schützen und bindet den Bau in die Hartbelagsflächen der Umgebungsgestaltung ein.
Die vorgefertigten Hohlkasten-Wandelemente werden mit im Werk vorgefertigten Elementen aus wellenförmigen Holzlatten beplankt. Die mit der Zeit je nach Sonnenexposition unterschiedlich ausbleichenden, in Bewegung wirkenden Hölzer sollen als eine Referenz an das Wasser der Sihl und ihr Treibholz, sowie das frühere Flechten von Reusen zum Fischfang an solchen Wasserläufen dienen.
Timelapse-Video auf Youtube.
Alle Fotos: Copyright 2021 Andreas Buschmann
Projekt // project
- Wettbewerb
- Kindergarten
- Holzbau














